Портал про бізнес, освіту та технології в сфері послуг

Статья Алгоритм створення сучасного салону краси

Сучасний салон краси: планування, дизайн, будівництво

Поділіться новиною у соціальних мережах

13 лютого 2023
0
873

Салони краси, косметологічні клініки та SPA – бізнес, де недостатньо виключно емоційного та естетичного підходу. Необходно врахувати безліч факторів, безпосередньо впливаючих на успіх бизнесу, імідж та прибуток.

Ключові складові створення прибуткового бізнесу в індустрії краси

  • Чітке розуміння бізнес-моделі: маркетингової, (продукти; ціновий сегмент: економ, бізнес, преміум; ємність ринку для планування кількості робочих місць та його особливості), сервісної, фінансової та ресурсної складової бізнесу.
  • Фірмовий стиль (айдентика, логотип, бренд бук,  сайт, представницьки матеріали, соціальні мережі, дизайн інтер’єру тощо).
  • Приміщення, що відповідає бізнес-моделі (розташування, розмір, функціональність, технічне оснащення).
  • Професійне обладнання: функціональне, сучасне, економічне.
  • Рекламні та PR-кампанії (брендові, продуктові,  промо та репутаційні кампанії).
  • Фаховий персонал (спеціалісти, адміністратори, допоміжний персонал) та система швидкого навчання (внутрішній учбовий центр, SOP - стандарти салону краси, косметологічної клініки, SPA).
  • Кваліфіковане операційне управління: керівник, який володіє сучасними інструментами керування підприємством, досконало розуміючий особливості роботи підприємств в індустрії краси, пройшовший відповідне навчання.

Дрібні деталі та помилки в організації робочих процесів можуть звести на нуль всі зусилля та обесцінити финансові вкладення, які були витрачені при відкритті салону краси. 

Перед тим, як читати статтю далі, зверніть увагу на важливе повідомлення від СМ. Ми мріємо про те, щоб індустрія краси та медицина України були конкурентними та привабливими не тільки для внутрішнього споживача.

Знання англійської мови - необхідна умова для зростання та інтеграції в світову економіку послуг. Ми маємо говорити грамотно та вільно.

Приєднуйтесь до вивчення англійської мови за потужною системою English Search Quest, створеною освітнею компанією DenEdSy. Intelligence Evolution Hub - нашими партнерами та друзями. 

Створення успішного б’юті-бізнесу є складним процесом, в якому переплітаються багато складових та факторів впливу. Розберемось з цим докладныше.

Важливі взаємопов’язані етапи створення салону краси, косметологічної клініки та SPA

Консалтинг. Підбір локації під задані параметри пошуку (бізнес-модель, цільова аудиторія) або розробка бізнес-моделі під конкретне приміщення. Навчання керівництва та адміністраторів, розробка фірмового стилю, рекламної та PR-компанії, розробка унікальної торгової пропозиції, меню послуг, системи оплати працівників тощо).

Архітектура та дизайн. Аналіз особливості приміщення, резолюція щодо можливості реалізації задуманої концепції. Розробка 3D візуалізації майбутнього простору краси.

Будівництво. Резолюція по можливості реализації проекту (мокрі точки, електропотужність тощо).

Сформувавши розуміння, яким має бути б’юті-простір вашої мрії, настає творчий етап – створення дизайн-проекту та його реалізація. 

Почнемо з прикладів помилок, які нерідко зустрічаються в інших планувальних та дизайн-проектах салонів краси.

1. Зона ресепшн не має знаходитися відразу при вході, так як вона перекриватиме прохідну зону.

Помилки розташування зони ресепшн в салоні краси Помилки розташування зони ресепшн в салоні краси
Помилки дизайну вхідної зони і зони ресепшн в салоні краси Помилки розташування зони ресепшн в салоні краси

2. Розміщення мийок. 

Щоб забезпечити максимальний комфорт клієнтів, ми перші почали проєктувати зону мийок окремо від зони дзеркал і не на очах у всіх. Мийки розміщуємо таким чином, щоб уникнути запаху каналізації, приховати труби та забезпечити простий доступ для обслуговуючого персоналу. Відсутність колорбару у зоні мийок обмежує комфорт роботи майстра. 

Неправильно спроектовані зон мийок в салоні краси Невірно спроектовані зон мийок в салоні краси
Неправильно спроектовані зон мийок в салоні краси Невірно спроектовані зон мийок в салоні краси
Невірно спроектовані зон мийок в салоні краси

3. Недостатнє або неправильно підібране освітлення. Занадто темне оформлення стін.

Помилки освітлення в салоні краси Помилки освітлення в салоні краси
Помилки освітлення в салоні краси

4. Розміщення рітейл зони. Вітрина за спиною адміністратора або вітрина закритого типу обмежує доступ до продукції та знижує відсоток продажу. 

Помилки розміщення вітрин в салоні краси
Помилки розміщення вітрин в салоні краси

5. Оформлення косметологічного кабінету. Відсутність вікон, занадто мала площа кабінету. 

Помилки дизайну косметологічного кабінету Помилки дизайну косметологічного кабінету
Помилки дизайну косметологічного кабінету

Переходимо до етапів реалізації проекту створення салону краси, косметологічного центру, SPA.

Етапи розробки дизайн проекту

Планувальне рішення (зонування) 

  • Виконується обмірний план з прив'язкою комунікації.
  • Складання технічного завдання, згідно з передбачуваною концепцією.
  • Розробка планувального рішення простору, функціональний зонування (робочі зони, рітейл зони та зони відпочинку, госп.приміщення тощо) з переліком факторів, які не можна міняти: несучі стіни та комунікації.
  • Фіналізація планувального рішення.

Стилістичне рішення

Дизайн-концепт – стилістичне та колористичне рішення, в залежності від обраної цільовой аудиторії.

Робочий проект 

  • Обмірний план
  • План демонтажу
  • План монтажу
  • План розміщення меблів
  • План розміщення сантехніки
  • План стель
  • План освітлення
  • Розміщення електричних розеток
  • План підлогових покриттів
  • Схема опалення та теплої підлоги
  • Відомість підлог
  • Відомість обробки стін
  • План розміщення радіаторів
  • Специфікація - список дверей, світильників, сантехніки

Реалізація проекту

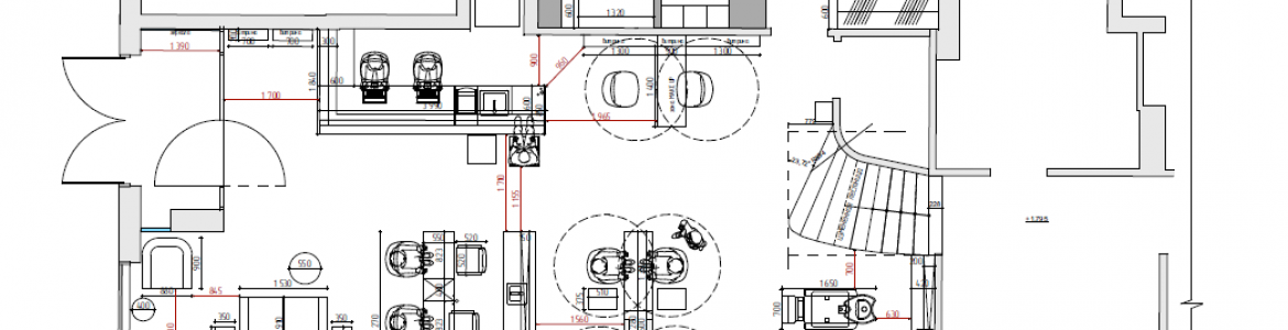
Приклад виправлення помилкового планування салону краси

Розповсюджена практика, коли до нас приходить клієнт з плануванням проекту салону краси на реалізацію і виявляється, що на перший погляд гарний проект має низку грубих помилок у контексті функціонального б'юті-простору.

У цьому прикладі розглянемо два варіанти планування салону краси, помилки і варіант їх виправлення. 

Фото 1. Планування клієнта

Помилки планування салону краси Планування салону краси, з яким клієнт прийшов на реалізацію проекту

2. Перепланування MAGIS

Грамотне планування салону краси MAGIS Перепланування салону краси, зроблене компанією MAGIS

Помилки та їх виправлення

1. Зона ресепшен. У першому варіанті ми бачимо величезний нефункціональний ресепшен з великою барною зоною. В даному випадку це неергономічно, так як в салоні все ж основна функція інша, і немає необхідності приділяти велику площу для бару, яку ми віддали на користь корисного робочого простору.

2. Гардероб. Зона очікування. У початковому проєкті біля вхідної зони розташована величезна шафа... Гардероб - це те, що не є основною прикрасою інтер'єру, в нашому варіанті перепланування ми його перенесли, за рахунок чого розширили зону очікування. Оскільки в першому варіанті було передбачено всього два крісла, чого не достатньо для такого великого салону. 

3. Ритейл зона. У першому варіанті одна з вітрин розміщена за спиною адміністратора. Таке розташування вітрини обмежує доступ клієнтів до продукції і знижує відсоток продажів. У другому варіанті ми перерахували вітрини і також додали їх у зону очікування і зону візажистів.


4. Зона манікюру. У першому варіанті проєкту відсутня лабораторія для стерилізації, що неприпустимо!!! Зона стерилізації та обладнання має бути на видимому місці. Також врізні мийки розміщені прямо в манікюрному столі, біля клієнта, не варто й пояснювати, як це незручно і непрофесійно.

5. Зона стилістів. Зона візажистів. У першому варіанті розміщено 4 робочих місця таким чином, що у двох майстрів з боку вікна немає місця для комфортної роботи. У другому варіанті планування ми розмістили 4 робочих місця стилістів і двосторннє робоче місце для візажистів.

6. Зона мийок. На етапі включення в проєкт, ми могли працювати тільки з урахуванням вже виведених мокрих точок, тому перевертати розташування мийок було неможливим. Ми залишили дві мийки (достатньо для 4 робочих місць стилістів) і використовували перегородку, яка прикриває клієнтів на доглядових процедурах.

Кожна дрібниця впливає на сприйняття вашого бізнес-підприємства клієнтами.

Замовте планування, дизайн, оформлення інтер'єру та будівництво салону краси, косметологічної клініки та SPA під ключ в MAGIS – ми візьмемо всі турботи щодо реалізації на себе та гарантуємо ідеальний результат.

Контакти MAGIS:

+380 95 392 27 95,
+380 96 913 88 28
E-mail: info@maghis.ua
Сайт: magis.ua

Думка порталу СМ може не співпадати з думкою авторів.

Книги та відеокурси з управління бізнесом в індустрії краси.

Система вивчення англійської мови English Search Quest, створена українською освітньою компанією Denedsy. Intelligence Evolution Hub – потужна альтернатива репетиторам, груповим заняттям, додаткам тощо.

English Search Quest поєднує в собі академічний підхід, принцип «Education through experience» – навчання через власний досвід та застосування ігрової технології Quest.

Для занять на курсі ESQ 1 необхідно мати досвід вивчення англійської мови (наприклад, в школі або на курсах) та виконати вхідне завдання. Акцент на граматику, лексику і правильне говоріння.

Для занять на курсі ESQ 2 необхідно мати загальні знання граматики. Акцент на зняття блоку, розвиток навичок грамотного говоріння та навчання думати англійською. До занять на курсі допускаються студенти, які пройшли вхідний Тест ESQ 2.

Якщо ви ніколи не вивчали англійську мову - почніть з курсу Start up touch.

Ми займаємось самі та радимо вам: +380 68 824 08 17 (Telegram, Viber, WhatsApp).

Радимо почитати

баннер